Wohnung, Miete, Solingen

Penthouse in zentraler Lage von SG Ohligs

Objektbeschreibung

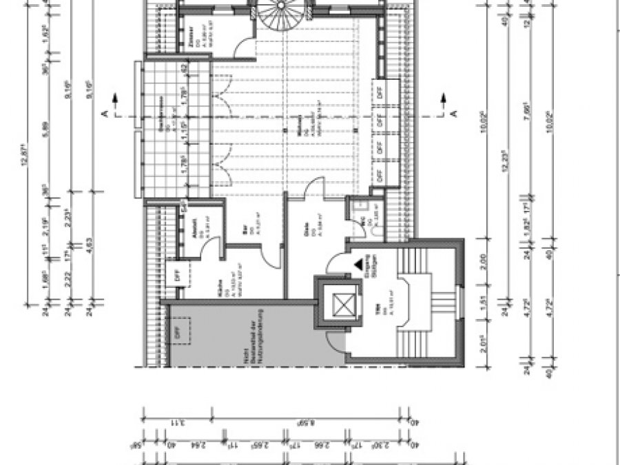
Diese lichtdurchflutete Wohnung lässt keine Wünsche offen.

Die sonnige Loggia liegt stimmig vor dem großzügigen Wohnraum.

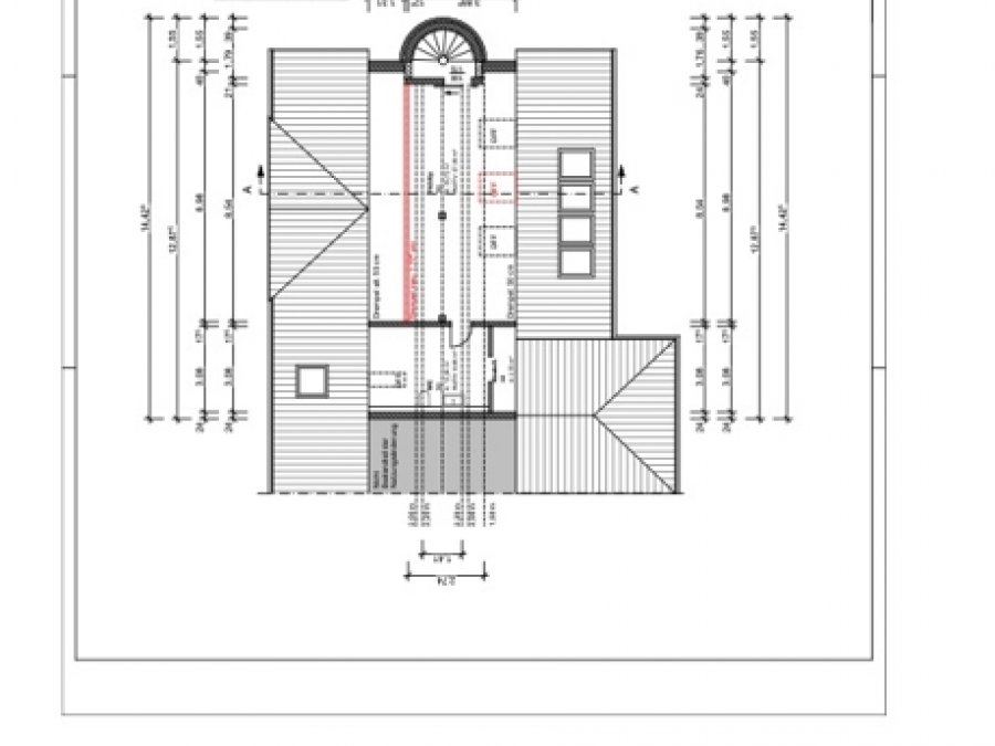
Im Dachgiebel befindet sich ein großzügiger großer Allzweckraum mit Badezimmer.

Lage

Dieses luxuriöse Penthouse liegt im begehrtem Stadtteil Ohligs.

Die schöne Fußgängerzone ist fußläufig zu erreichen.

Selbst zum Solingen Hauptbahnhof sind es nur 400 Meter.

Sonstiges

Die Wohnung wurde komplett einzugsfertig renoviert.

Preise & Kosten

Betriebskosten netto € 530
Gesamtbelastung (brutto) € 2.230
Kaltmiete € 1.700
Warmmiete € 2.230
Nebenkosten € 530
Heizkosten in der Warmmiete enthalten
Kaution € 4.000

Größe & Zustand

Wohnfläche 180 m2
Nutzfläche 9 m2
Anzahl Etagen 3
Zimmer 4
Schlafzimmer 2
Badezimmer 2
separate WCs 1
Größe Balkon/Terrasse 18 m2
Zustand Teil-/Vollrenoviert
Baujahr 1987
Verkaufsstatus offen
Verfügbar ab nach Absprache
Objekt ist vermietet

Energieausweis F

0
>250
Endenergiebedarf
183.80 kWh/(a·m²)
Gebäudeart
Wohnimmobilie
Energieausweis Art
Bedarf
Gültig bis
2034-02-27
Endenergiebedarf
183.80 kWh/m²a
Baujahr lt. Energieausweis
2021
Erstellungsdatum
Ausgestellt ab dem 01.05.2014
Energieeffizenzklasse
F
Primärenergieträger
GAS

Ausstattung

Heizungsart
Zentralheizung
Befeuerung
Gas
Aufzug
Personenaufzug
Kabel / Sat- TV

Aufzug

Großzügige Bäder

Hochwertiger Marmorboden

Fußboden Heizung

Einbau Küche

Viele Einbau-Schränke

Ansprechpartner

Robert Hitzegrad

Hitzegrad Immobilien

Telefon00491632676147
Mobil00491632676147
E-Mailinfo@hitzegrad-immobilien.de
Webwww.hitzegrad-immobilien.de

Anbieter

Hitzegrad Immobilien

Talstr. 49
42657 Solingen

Telefon0163-2676147
E-Mailinfo@hitzegrad-immobilien.de
Webwww.hitzegrad-immobilien.de

Infrastruktur

Autobahn 5 km
Kindergarten 0,50 km
Grundschule 0,50 km
Realschule 2 km
Gymnasium 2 km
Zentrum 0,20 km

Bilder

Penthouse in zentraler Lage von SG Ohligs Penthouse in zentraler Lage von SG Ohligs Penthouse in zentraler Lage von SG Ohligs Penthouse in zentraler Lage von SG Ohligs Penthouse in zentraler Lage von SG Ohligs Penthouse in zentraler Lage von SG Ohligs Penthouse in zentraler Lage von SG Ohligs Penthouse in zentraler Lage von SG Ohligs Penthouse in zentraler Lage von SG Ohligs Penthouse in zentraler Lage von SG Ohligs Penthouse in zentraler Lage von SG Ohligs Penthouse in zentraler Lage von SG Ohligs Penthouse in zentraler Lage von SG Ohligs Penthouse in zentraler Lage von SG Ohligs Penthouse in zentraler Lage von SG Ohligs Penthouse in zentraler Lage von SG Ohligs Penthouse in zentraler Lage von SG Ohligs Penthouse in zentraler Lage von SG Ohligs Penthouse in zentraler Lage von SG Ohligs Penthouse in zentraler Lage von SG Ohligs Penthouse in zentraler Lage von SG Ohligs