Haus, Kauf, Solingen

Topsaniertes großzügiges EFH in ruhig gepflegter Lagefür die große Familie

Objektbeschreibung

Es gibt immer mal wieder Immobilien, bei denen man in dem Augenblick, in dem man sie betritt, dieses ganz besondere Gefühl hat, zuhause angekommen zu sein.

Ein Haus, von dem man in diesem Moment schon weiß, dass es genau das ist, wonach man lange gesucht hat.



Eine solche Immobilien möchten wir Ihnen heute anbieten.

Ein Einfamilienhaus mit viel Potenzial und einem tollen Garten in der Südstadt von Solingen.

Das freistehende, im Jahr 1957 in massiver Bauweise errichtete Haus besticht durch seinen Charakter.

Lage

Freistehend mit einem gemütlichen Umfeld, blickgeschützt in einem parkähnlichen Garten mit Süd-Westausrichtung, präsentiert sich das solide Haus.

Die Lage in Solingen ist ideal für Familien: Schulen, Kitas, Einkaufsmöglichkeiten und Erholungsgebiete sind fußläufig oder mit dem Rad schnell erreichbar.

Sonstiges

Küche:

Einbauküche mit weißen, grifflosen weißen Hochglanzschränken Mikrowelle, Kühlschrank, Miele Spülmaschine, Elektroherd mit Bachofen, Dunstabzug



Badezimmer:

1 Bad im Erdgeschoss

1 Bad im Obergeschoss



Keller:

separate, volleingerichtete Küche, Wäschekeller und kleine Sitzecke mit TV-Anschluss

Alle Räume mit viel Stauraum.



Heizung:

Gas-Zentralheizung

Außenbereich:

große Terrasse mit Markisen, 2 kleinere Terrasse und parkähnlicher Garten



1 Garage mit elektrischem Sektionaltor und Stellplatz.

Der Bodenbelag der Garage besteht aus Epoxidharz.

Preise & Kosten

Kaufpreis € 795.000
Anzahl Garage 1
Käufercourtage 3,57 % inkl.ges. MwSt

Größe & Zustand

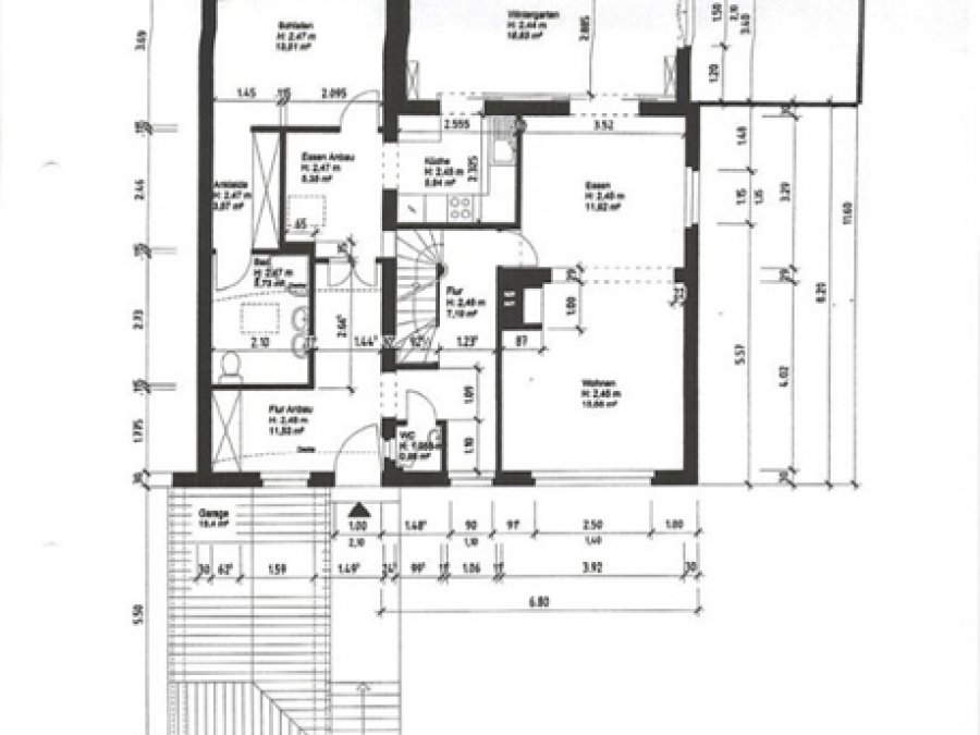
Wohnfläche 200 m2
Nutzfläche 40 m2
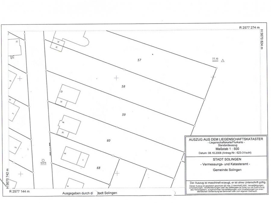
Grundstücksfläche 1.263 m2
Anzahl Etagen 2
Zimmer 6
Schlafzimmer 4
Badezimmer 2
separate WCs 1
Anzahl Stellplätze 1
Einliegerwohnung
Zustand Neuwertig
Baujahr 1957
Verkaufsstatus offen
Verfügbar ab nach Absprache

Energieausweis

Energieverbrauchskennwert
240.00 kWh / (a·m²)
0
>250
Gebäudeart
Wohnimmobilie
Energieausweis Art
Verbrauch
Gültig bis
2033-08-30
Energieverbrauchskennwert
240.00 kWh/m²a
Erstellungsdatum
Ausgestellt ab dem 01.05.2014

Ausstattung

Heizungsart
Zentralheizung
Befeuerung
Gas
Kabel / Sat- TV
Unterkellert
Ja

Das Grundstück mit einer Größe von 1263 qm ist liebevoll angelegt und bietet einen blickgeschützten, traumhaften, parkähnlichen Garten der zum Entspannen, Spielen und Gärtnern einlädt.

Die gepflegte Terrasse, mit Markisen, lädt zu geselligen Stunden im Freien ein.

Zwei kleinere Terrassen im hinteren Gartenbereich runden das Bild ab.

Die gepflegte Gartenanlage mit üppigen Hecken, Gehölzen und Bäumen bieten eine private Oase zum Wohlfühlen.

Das moderne Wasserbecken sowie eine individuelle Beleuchtung runden den Wohlfühl-Effekt ab.

Eine Garage mit elektrischem Sektionaltor und Stellplatz bieten zusätzlichen Komfort.

Das Haus verfügt über 200 qm Wohnfläche, verteilt auf EG und OG.

Im EG befindet sich eine einladende Diele mit Zugang zum Gäste-WC, ein großzügiges Wohnzimmer mit anschließendem Esszimmer sowie die Küche mit Zugang zur Terrasse.

Das Wohnzimmer und Esszimmer bieten einen herrlichen Blick in den Garten.

Ein Fernsehzimmer, mit Leinwand und Beamer ( in die Decke einfahrbar ) und Gartenblick befindet sich ebenfalls im EG.

Die Küche im EG ebenfalls mit Gartenblick grenzt an das Esszimmer.

Das Schlafzimmer im EG hat ein anschließendes Badezimmer, ausgestattet mit barrierefreier Dusche, Waschtisch und WC.

Das Obergeschoss verfügt über drei Zimmer, eines davon mit französischem Balkon sowie Gartenblick und ein Tageslichtbad.

Ein Spitzboden bietet zusätzlichen Stauraum.

Der ausgebaute Keller mit ca. 40 qm bietet viel Stauraum, eine eingerichtete Küche, Wäschekeller, Sitzecke mit TV-Anschluss.

Die Ausstattung des Hauses wurde über die Jahre modernisiert: Isolierverglaste Fenster, elektr. Rolläden, eine moderne Elektroverteilung und eine Viessmann-Gas-Brennwert-Heizung sorgen für Komfort.

Die Böden sind mit Fliesen und Laminat verlegt.

Ansprechpartner

Robert Hitzegrad

Hitzegrad Immobilien

Telefon00491632676147
Mobil00491632676147
E-Mailinfo@hitzegrad-immobilien.de
Webwww.hitzegrad-immobilien.de

Anbieter

Hitzegrad Immobilien

Talstr. 49
42657 Solingen

Telefon0163-2676147
E-Mailinfo@hitzegrad-immobilien.de
Webwww.hitzegrad-immobilien.de

Infrastruktur

Autobahn 5 km
Kindergarten 0,50 km
Grundschule 0,50 km
Realschule 0,50 km
Gymnasium 0,50 km
Zentrum 1 km

Bilder

Topsaniertes großzügiges EFH in ruhig gepflegter Lagefür die große Familie Topsaniertes großzügiges EFH in ruhig gepflegter Lagefür die große Familie Topsaniertes großzügiges EFH in ruhig gepflegter Lagefür die große Familie Topsaniertes großzügiges EFH in ruhig gepflegter Lagefür die große Familie Topsaniertes großzügiges EFH in ruhig gepflegter Lagefür die große Familie Topsaniertes großzügiges EFH in ruhig gepflegter Lagefür die große Familie Topsaniertes großzügiges EFH in ruhig gepflegter Lagefür die große Familie Topsaniertes großzügiges EFH in ruhig gepflegter Lagefür die große Familie Topsaniertes großzügiges EFH in ruhig gepflegter Lagefür die große Familie Topsaniertes großzügiges EFH in ruhig gepflegter Lagefür die große Familie Topsaniertes großzügiges EFH in ruhig gepflegter Lagefür die große Familie Topsaniertes großzügiges EFH in ruhig gepflegter Lagefür die große Familie Topsaniertes großzügiges EFH in ruhig gepflegter Lagefür die große Familie Topsaniertes großzügiges EFH in ruhig gepflegter Lagefür die große Familie Topsaniertes großzügiges EFH in ruhig gepflegter Lagefür die große Familie Topsaniertes großzügiges EFH in ruhig gepflegter Lagefür die große Familie Topsaniertes großzügiges EFH in ruhig gepflegter Lagefür die große Familie Topsaniertes großzügiges EFH in ruhig gepflegter Lagefür die große Familie Topsaniertes großzügiges EFH in ruhig gepflegter Lagefür die große Familie Topsaniertes großzügiges EFH in ruhig gepflegter Lagefür die große Familie Topsaniertes großzügiges EFH in ruhig gepflegter Lagefür die große Familie Topsaniertes großzügiges EFH in ruhig gepflegter Lagefür die große Familie Topsaniertes großzügiges EFH in ruhig gepflegter Lagefür die große Familie Topsaniertes großzügiges EFH in ruhig gepflegter Lagefür die große Familie Topsaniertes großzügiges EFH in ruhig gepflegter Lagefür die große Familie Topsaniertes großzügiges EFH in ruhig gepflegter Lagefür die große Familie Topsaniertes großzügiges EFH in ruhig gepflegter Lagefür die große Familie Topsaniertes großzügiges EFH in ruhig gepflegter Lagefür die große Familie Topsaniertes großzügiges EFH in ruhig gepflegter Lagefür die große Familie Topsaniertes großzügiges EFH in ruhig gepflegter Lagefür die große Familie Topsaniertes großzügiges EFH in ruhig gepflegter Lagefür die große Familie