Grundstück, Kauf, Leichlingen

Ruhiges Baugrundstück in begehrter Lage

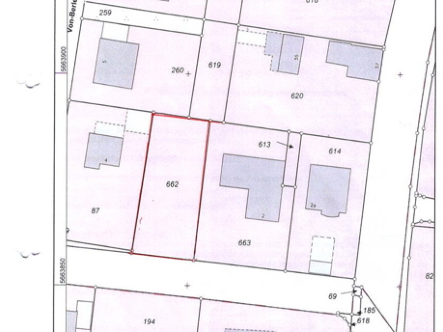
Lage

Dieses ruhige und gepflegte Baugrundstück liegt am Stadtrand von Leichlingen.

Die Autobahn ist in 2km schnell zu erreichen.

Es besteht eine gepflegte Nachbarschaftsbebauung.

Die Straße endet in einem Sackgassenbereich.

Die Naherholung ist fußläufig erreichbar.

Preise & Kosten

Kaufpreis € 265.000
Käufercourtage 3,57 inkl. ges. MwSt

Größe & Zustand

Grundstücksfläche 476 m2
COM_PRIME_BEBAUBAR_NACH COM_PRIME_§34 Nachbarschaft
Erschließung Vollerschlossen
Verkaufsstatus offen
Verfügbar ab sofort

Ausstattung

Kabel / Sat- TV

Ansprechpartner

Robert Hitzegrad

Hitzegrad Immobilien

Telefon00491632676147
Mobil00491632676147
E-Mailinfo@hitzegrad-immobilien.de
Webwww.hitzegrad-immobilien.de

Anbieter

Hitzegrad Immobilien

Talstr. 49
42657 Solingen

Telefon0163-2676147
E-Mailinfo@hitzegrad-immobilien.de
Webwww.hitzegrad-immobilien.de

Infrastruktur

Autobahn 2 km
Kindergarten 1 km
Grundschule 0,80 km
Realschule 2,20 km
Gymnasium 2,20 km
Zentrum 1 km

Bilder

Ruhiges Baugrundstück 

in begehrter Lage Ruhiges Baugrundstück 

in begehrter Lage Ruhiges Baugrundstück 

in begehrter Lage Ruhiges Baugrundstück 

in begehrter Lage